Savivaldybė: Kauno r. sav.
Statybos metai: 2024
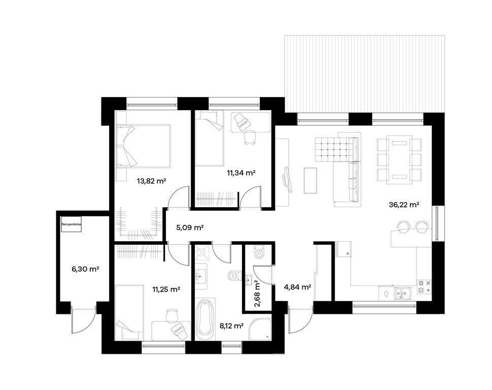
Plotas: 100.00 m2
Aukštų skaičius: 1
Kaina: 155000 €
Įmoka: 640€/mėn.
Objekto informacija

Namai jungti TIK per sandėliuką, akligatvyje
https://jususeimai.lt/kotedzai
100 proc. aplinkos baigtumas, 85 proc. vidaus baigtumas
Apie projektą:
• vienaaukščiai kotedžai;
• blokuoti TIK per šiltą sandėliuką, nėra kitų bendrų sienų;
• plotas – 100 kv. m;
• skypo plotai – 5 arai;
• suprojektuoti akligatviais – po du dvibučius kiekvienoje pusėje;
• parduodami su daline apdaila (gali būti įrengti pagal kliento poreikius).
Supanti aplinka:
Visoje zonoje abipus Šviesos gatvės dominuoja nuosavi, daugumoje vienaaukščiai namai, kas lemia mažesnį gyventojų tankį, mažesnius automobilių srautus.
Šalia viešasis transportas, parduotuvė, picerija, sporto klubas, šeimos klinika, gyvūnų klinika. Net penki išvažiavimo keliai į miesto centrą, iki kurio tik 15 min:
važiuodami link Giraitės per kelias minutes pasieksite greitkelį, iš pagrindinės Liucijanavos gatvės per 7 min. privažiuosite DEPO bei Šilainių mikrorajoną, važiuojant link miško – 12 min iki Vilijampolės, arba per Romainių gatvę – 8 min iki Raudondvario plento, vakarinio aplinkkelio, Raudondvario plentą taip pat galima pasiekti per Aukštuosius Kaniūkus.

Pagrindiniai privalumai:
o Daug dėmesio skirta privatumui tiek kaimynų, tiek Jūsų šeimos narių atžvilgiu:
 kotedžai blokuoti tik per sandėliuką;
 terasas skiria namų korpusai;
 nuo namo sienos iki kaimyninio sklypo ribos net 12 m;
 sklypo dydis – 5 arai kotedžui;
 gyvenamoji ir miegamoji zonos yra atskiruose namo korpusuose;
 vienaaukštė kaimynystė.
o Patogus vidaus patalpų išplanavimas:
 virtuvė nišoje;
 du san. mazgai;
 sandėliukas su atskiru įėjimu;
 patogus tambūras;
 svetainė/valgomasis – net 36 kv. m;
 visuose kambariuose vitrininiai langai;
o Pagalvota apie moteris:
 virtuvės plotis – net 3,78 m, gylis 2,32 m – daug vietos darbastaliui, patogiam virtuvės reikmenų laikymui, kad gaminimas namuose būtų malonus bei patogus;
 virtuvėje langas virš darbastalio;
 didelis – net 8 kv. m vonios kambarys;
 miegamasis su drabužine.
o Pagalvota apie vyrus:
 dideliam vonios kambaryje tilps ir bidė;
 6 kv. m sandėlys vyriškiems reikmenims;
 TV skirtos sienos ilgis net 3,3 m;
 Didelė virtuvė talpins dvigubą šaldytuvą.
o Praktiškumas:
 įvadai saulės elektrinei;
 sumontuoti vandens kranai teritorijos priežiūrai;
 stogas virš įėjimo durų;
 klinkerio fasadas;
 asfaltuota, apšviesta gatvė;
 automatinis kelio užtvaras;
 patogus parkingas;
 erdvūs kiemai;
 galimybė automobilių stoginei;
 įvadas elektromobilių krovimo stotelei;
 ir kiti privalumai, apie kuriuos pagalvota jau daug metų klausantis klientų poreikių.

Vieta mieste

Panašūs objektai