Savivaldybė: Kauno m. sav.
Vietovė: Šilainiai
Statybos metai: 2002
Plotas: 464.00 m2
Aukštų skaičius: 4
Kaina: 387000 €
Įmoka: 1.600€/mėn.
Objekto informacija

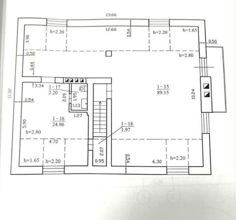
Objekto techninis aprašymas – Naujakurių g. 17A, Šilainiai

Paskirtis: gyvenamoji
Bendras pastato plotas: 464 m²
Aukštų skaičius: 3 aukštai + rūsys
Viršutinis aukštas: mansarda
Rūsys: pilnai įrengtas, registruotas kaip garažas (šiuo metu naudojamas kaip siuvykla)
Konstrukcija: mūrinis (plytų mūras)
Sklypo plotas: 6 arai
Sklypo paskirtis: namų valda
Kadastriniai matavimai: atlikti, dar nepriduota

Konstrukciniai sprendiniai ir izoliacija

Pamatai: nešiltinti

Sienos: apšiltintos 5 cm putų polistireno sluoksniu

Perdanga: viršutinis aukštas užklotas šilumos izoliacija (vata)

Stogas: nekeistas

Langai ir durys: įvairaus senumo, dalis keista

Inžinerinės sistemos

Vandentiekis: miesto

Nuotekos: miesto

Dujos: atvestos į pastatą

Šildymas: dujinis katilas (šildo radiatorius ir karštą vandenį)

Papildomas šildymas:

1 aukšto koridoriuje – grindinis šildymas nuo bendros sistemos

1 aukšto sanitariniame mazge – elektrinis grindinis šildymas

Mansardos sanitariniame mazge – elektrinis šildymas

Elektra: trifazis įvadas (tiksli galia nenustatyta), instaliacija dalinai tvarkyta

Atskiri elektros įvadai: kiekvienam aukštui, įskaitant rūsį ir mansardą

Ryšiai: šviesolaidis internetas atvestas

Apsauga: išvedžiota signalizacija

Išplanavimas ir struktūra

Trys atskiri įėjimai (įskaitant rūsį) – tinkama naudoti kaip daugiabutį arba dviejų šeimų gyvenamą namą

Kiekviename aukšte – atskiras elektros įvadas

Rūsys – pilnai įrengtas, šiuo metu naudojamas kaip siuvykla

Mansarda – įrengta, apšiltinta, su sanitariniu mazgu

Papildoma informacija

Energinis sertifikatas: nėra

Sklypo forma: taisyklinga, privažiavimas asfaltuotas

Aplinkos tipas: individualių gyvenamųjų namų kvartalas

Infrastruktūra: patogus susisiekimas su miesto centru, netoliese mokyklos, darželiai, prekybos vietos, sveikatos įstaigos

Vieta mieste

Panašūs objektai